St Peter's Morley Community Centre Building Project is our big plan to redevelop the ageing Parish Hall into a vibrant new resource for everyone in Morley. We have worked with our architect, the community and hall users to develop ambitions plans for the new Centre.

Find out more about the project:
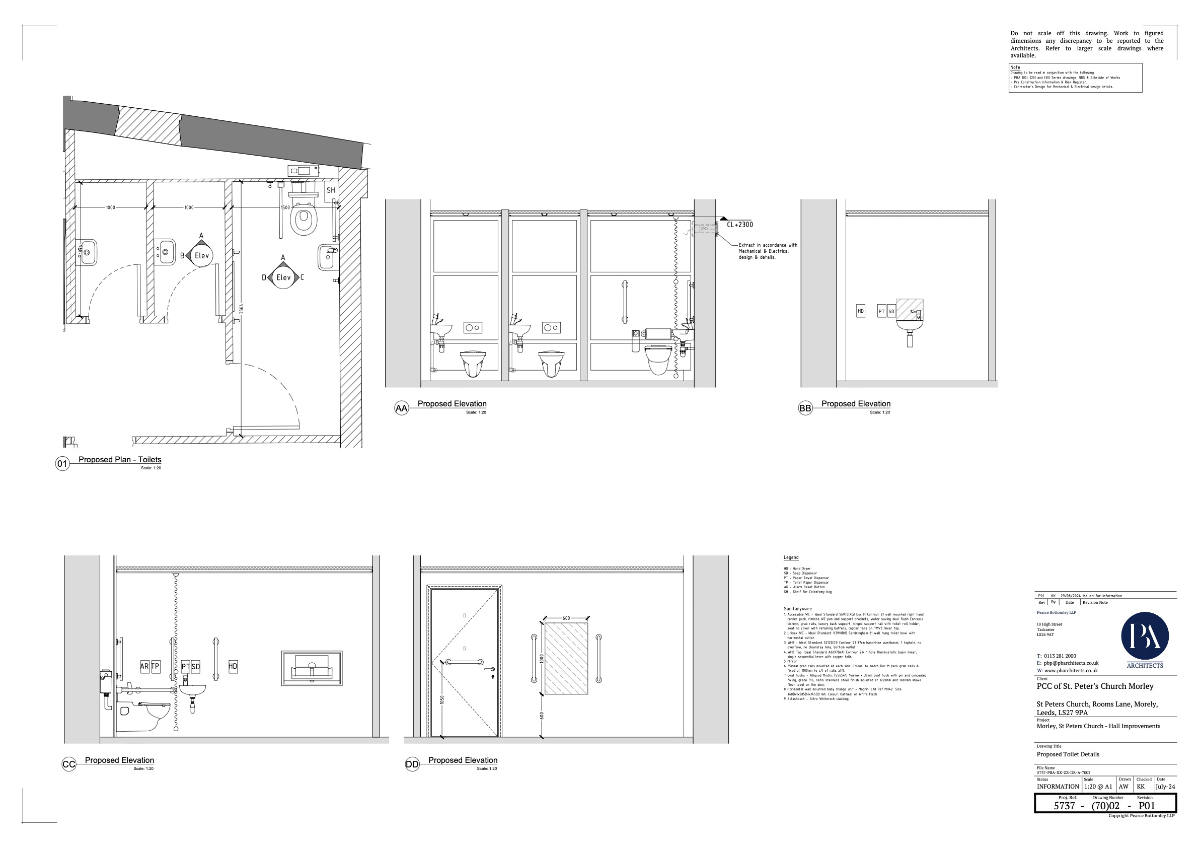
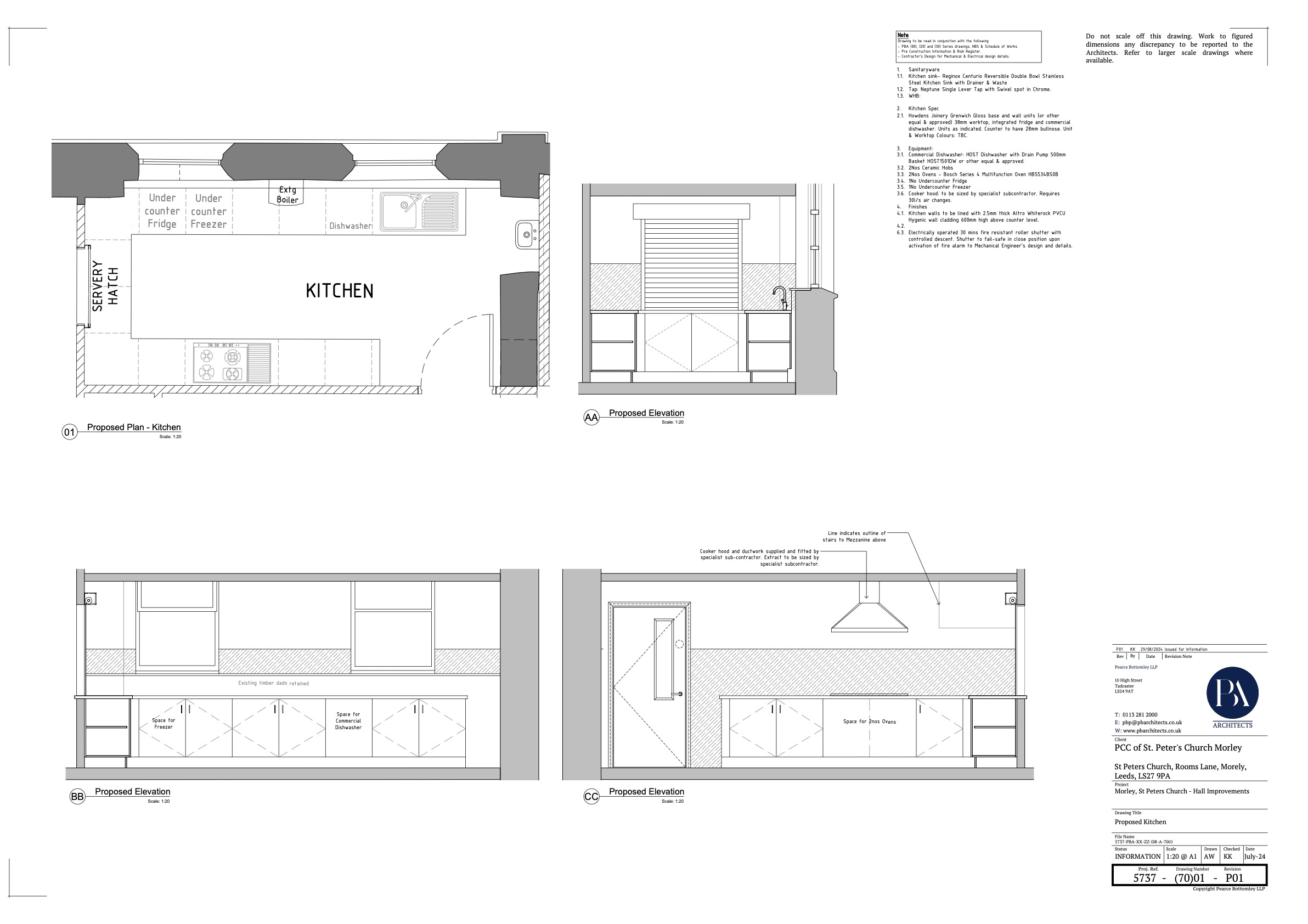
See our plans here: